![[ACHILLEAS]](https://admin.squareone.com.cy/media/project/hero/V2-R3_Exterior_hero.webp)
[ACHILLEAS]
Project Description
[ ACHILLEAS ]
Situated within a sought after residential enclave of Limassol, ACHILLEAS Residences is an exclusive contemporary development offering a refined selection of spacious 1 and 2 bedroom apartments.
Thoughtfully designed for those who value understated luxury and modern comfort, the project seamlessly combines privacy, elegant architecture, and everyday convenience. Residents benefit from easy access to Limassol’s premier amenities, reputable schools, boutique retail and dining options, while remaining just minutes from the city’s key commercial routes and vibrant urban center.
ACHILLEAS embodies a balanced lifestyle of tranquility, quality, and sophisticated coastal living.
- Property Type
- Residential
- Location
- Mesa Geitonia Get Directions
- Status
- Off Plan
- Expected Completion Date
- September 30, 2028
- Energy Efficiency
- Grade A
Project Gallery
![[ACHILLEAS] render image 1](https://admin.squareone.com.cy/media/project_renders/V2-R3_Exterior_owBEB9d.webp)
![[ACHILLEAS] render image 2](https://admin.squareone.com.cy/media/project_renders/V3-R3_Exterior_fcI5a7A.webp)
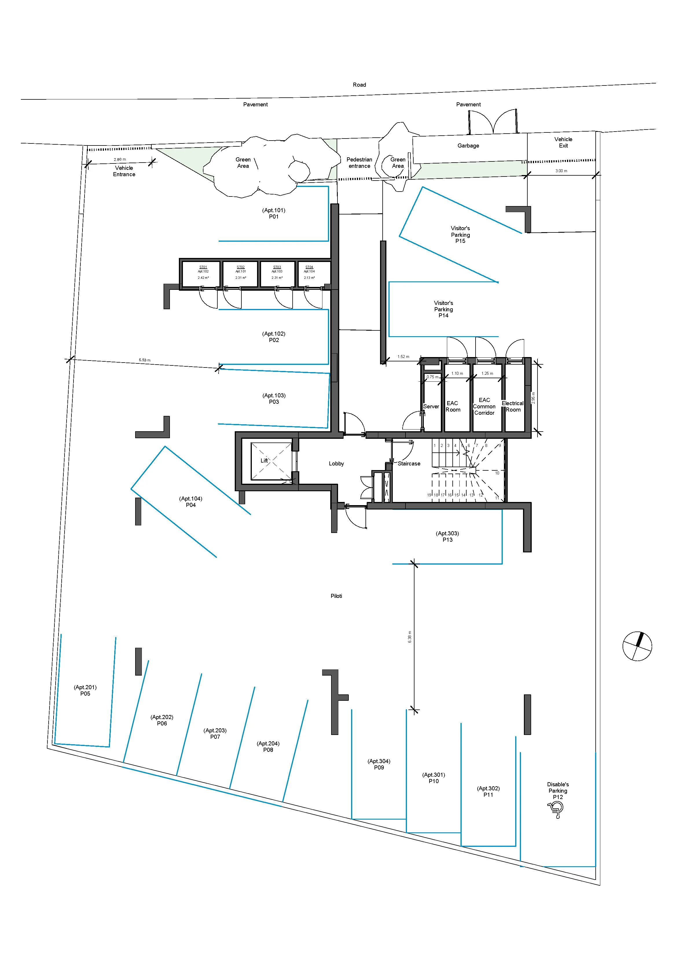
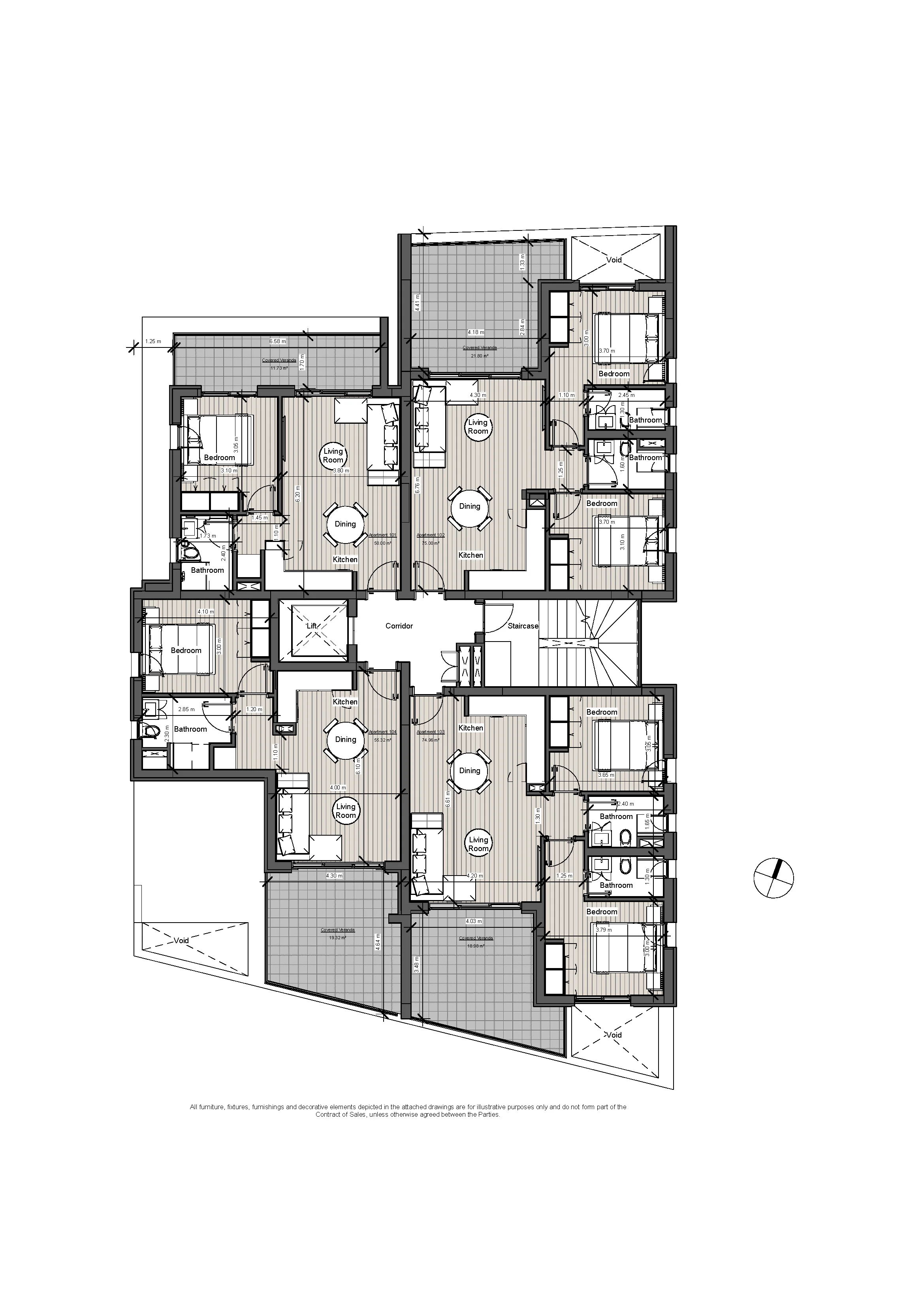
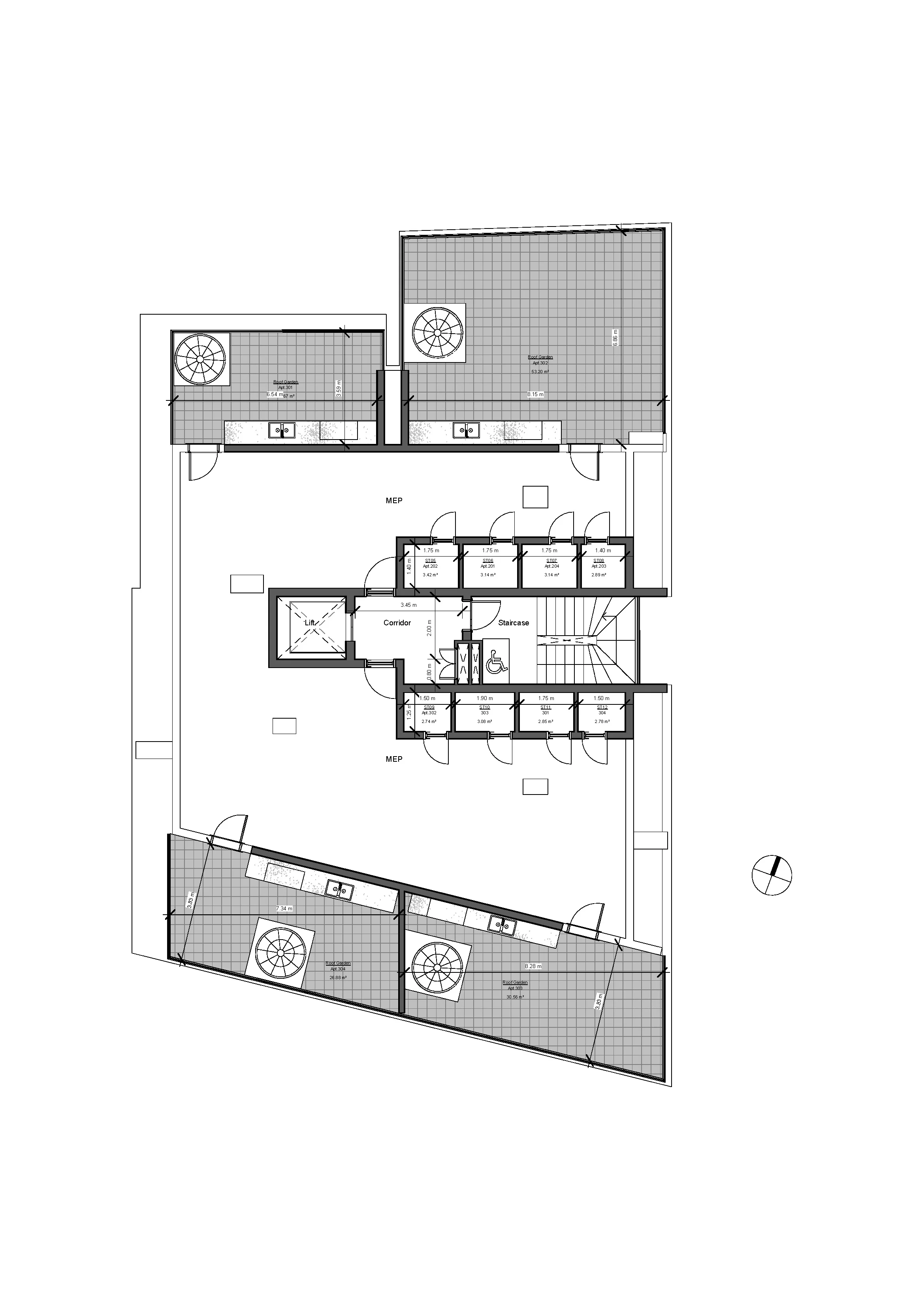
Floor Plans
Project Schedule Of Areas
| Status | Reference | Type | Floor | Bedrooms | Bathrooms | Pool | Covered m² | Total Area | |||||||||
|---|---|---|---|---|---|---|---|---|---|---|---|---|---|---|---|---|---|
Loading units... | |||||||||||||||||
Are you a partner? Sign in
Project Location
Get DirectionsLearn More
For inquiries, please leave us your details.














