This website uses cookies to enhance your user experience.
By using our website, you consent to all cookies in accordance with our Cookie Policy, Privacy Policy, and Terms & Conditions.
The Square, a sophisticated collection of 10 modern studios for sale in Limassol.
This prime property, centrally located, combines sleek design and contemporary interiors, offering an unparalleled urban living experience.
Ideal for both investment and dream home seekers, The Square presents a lucrative opportunity in the thriving Limassol real estate market. Explore these luxury apartments for sale and embrace a lifestyle that seamlessly blends convenience, style, and a prime city-center location.
| Property Type | Residential |
| Location | Historical Center |
| Status | |
| Expected Completion Date | |
| Energy Efficiency | Grade A |
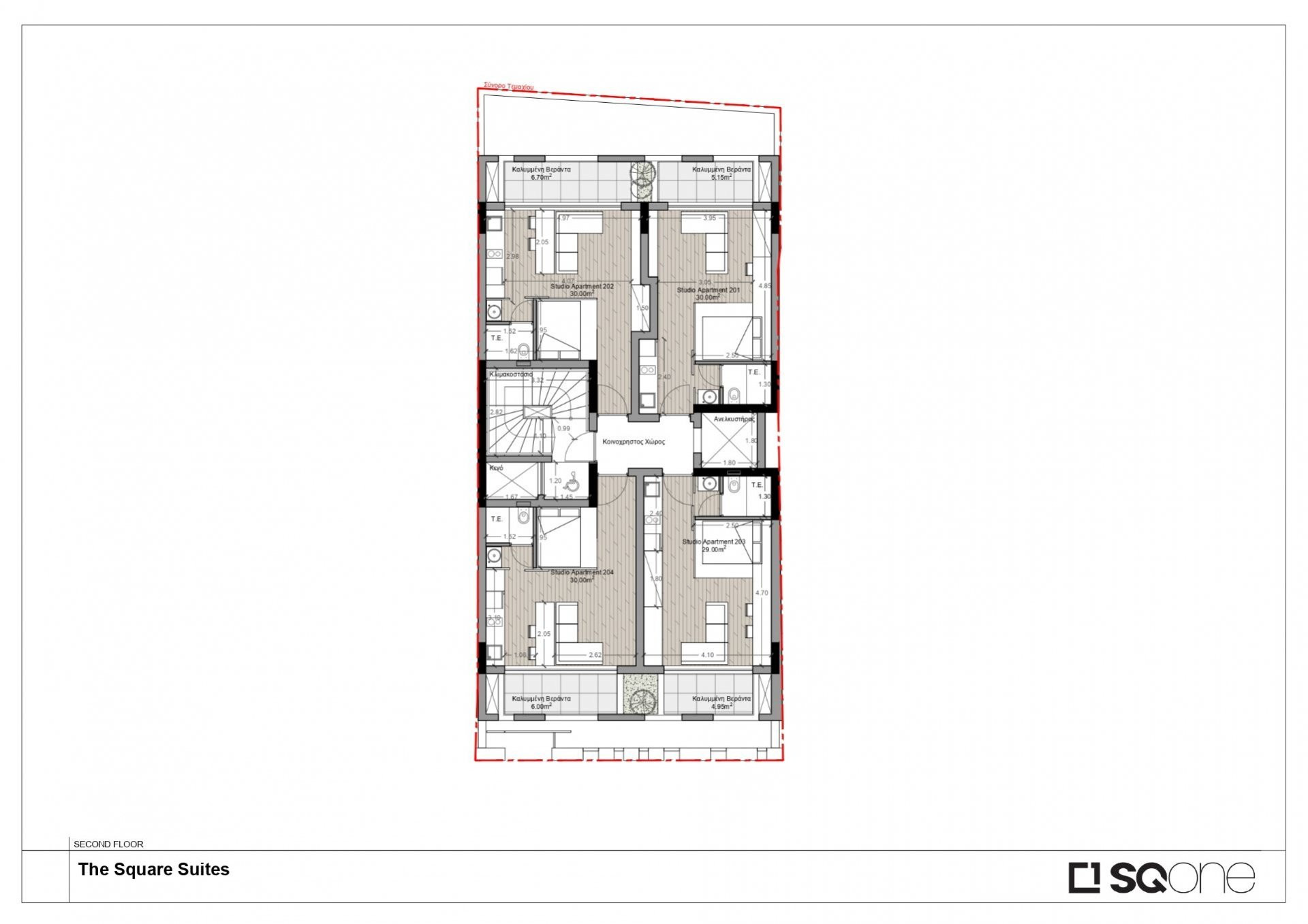
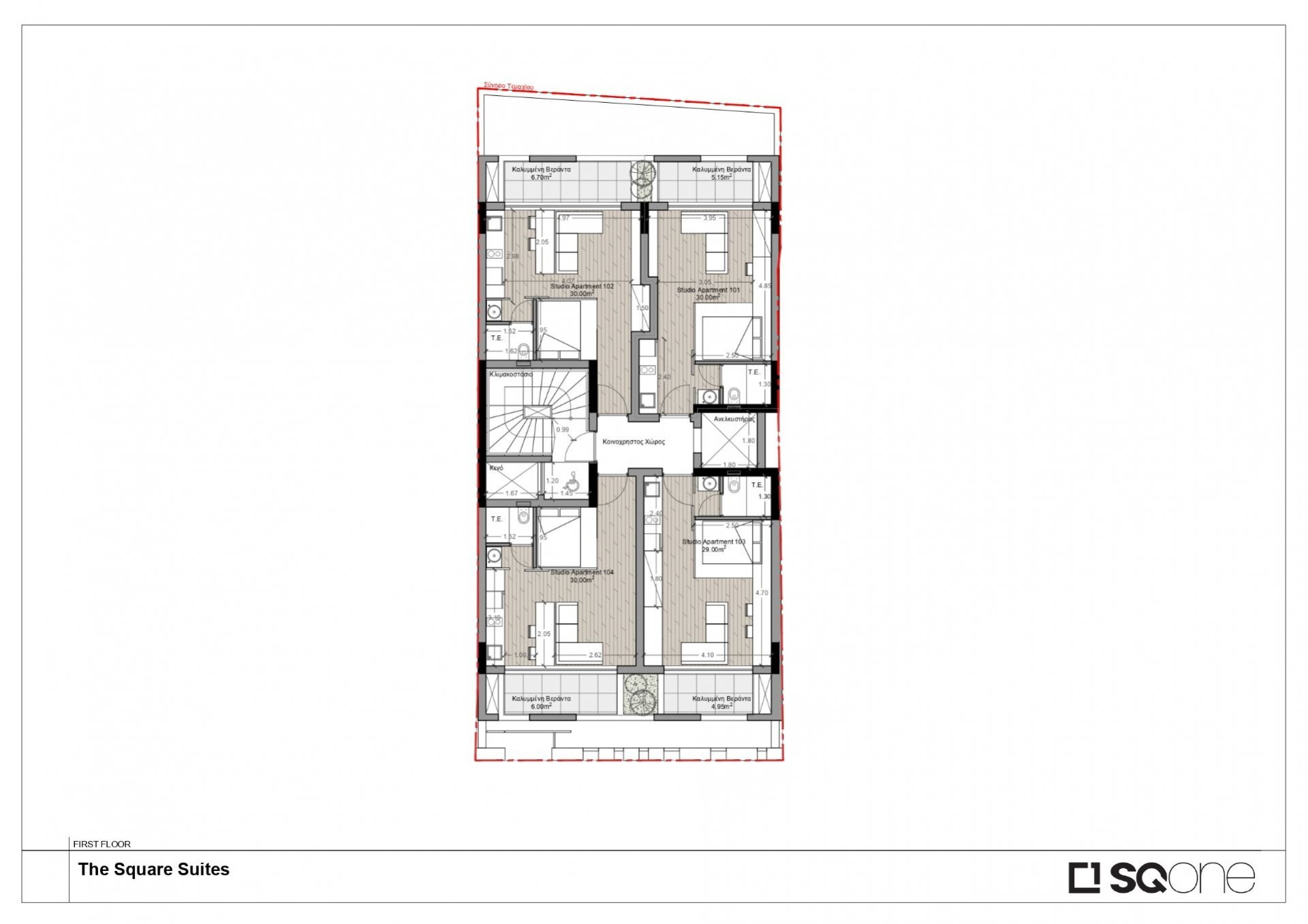
| Status | Reference | Type | Floor | Bedrooms | Bathrooms | Covered m2 | Covered veranda m2 | Roof garden m2 | Communal area m2 |
|---|---|---|---|---|---|---|---|---|---|
| 01 | Apartment | Ground floor | Studio | 1 | 30 | 7.5 | 6.77 | 3.42 | |
| 02 | Apartment | Ground floor | Studio | 1 | 30 | 6 | 6.77 | 3.42 | |
| 101 | Apartment | 1 | Studio | 1 | 30 | 5.15 | 6.77 | 3.42 | |
| 102 | Apartment | 1 | Studio | 1 | 30 | 6.7 | 6.77 | 3.42 | |
| 103 | Apartment | 1 | Studio | 1 | 29 | 4.95 | 6.54 | 3.31 | |
| 104 | Apartment | 1 | Studio | 1 | 30 | 6 | 6.77 | 3.42 | |
| 201 | Apartment | 2 | Studio | 1 | 30 | 5.15 | 6.77 | 3.42 | |
| 202 | Apartment | 2 | Studio | 1 | 30 | 6.7 | 6.77 | 3.42 | |
| 203 | Apartment | 2 | Studio | 1 | 30 | 6 | 6.77 | 3.42 |
Are you an agent? Sign in
For inquiries, please leave us your details.
Thank you for your message!