This website uses cookies to enhance your user experience.
By using our website, you consent to all cookies in accordance with our Cookie Policy, Privacy Policy, and Terms & Conditions.
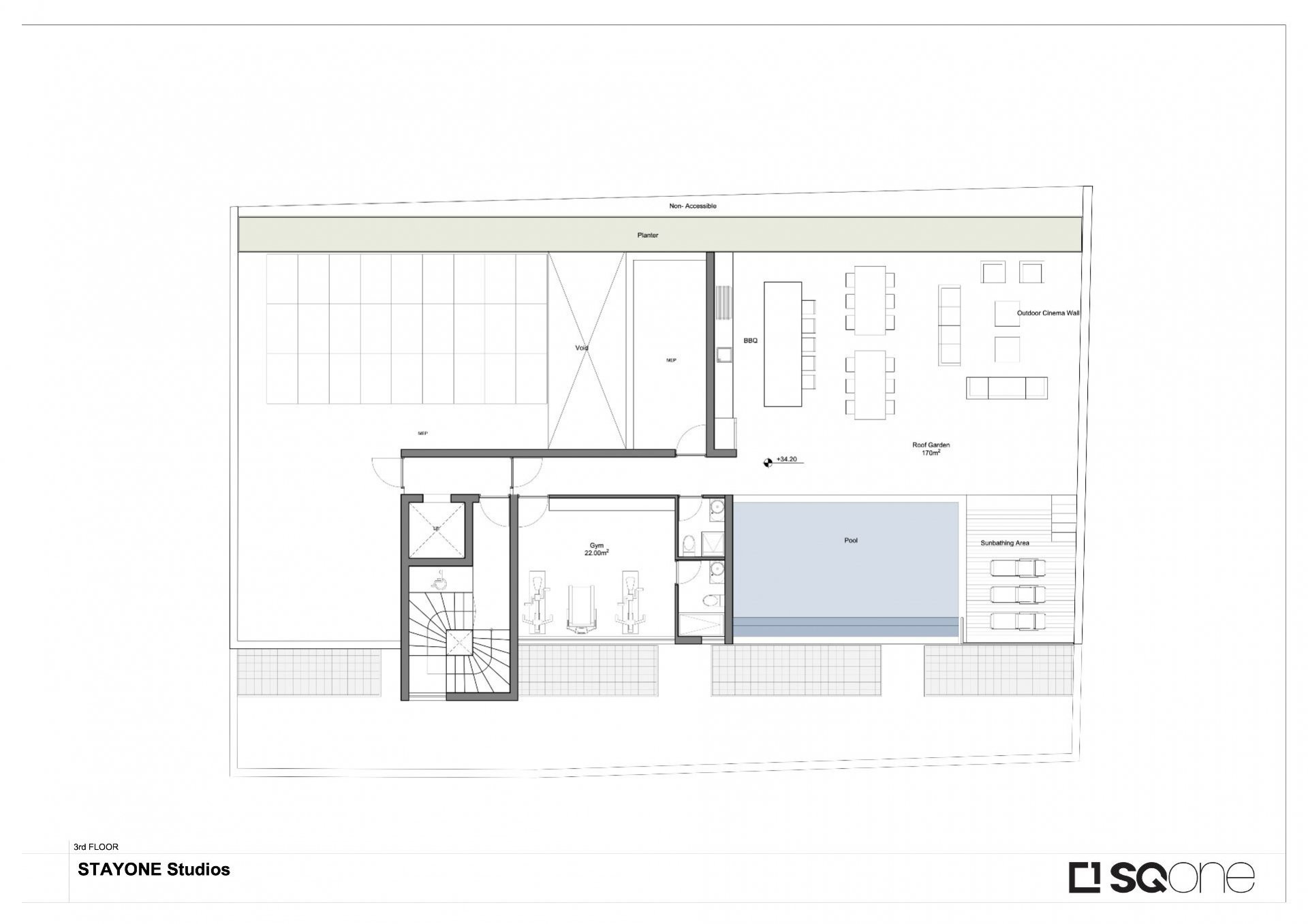
StayOne Residences; a collection of 25 serviced studio residences in the heart of Limassol's Old Town. Experience luxury and convenience with exceptional amenities, including a rooftop bar, pool, and fitness center. Explore the nearby Anexartisias Street and Agora, and immerse yourself in the city's charm.
StayOne Residences offers turnkey solutions and attractive returns, making it an ideal investment opportunity.
A home away from home in Limassol's vibrant Old Town.
| Property Type | Residential |
| Location | Historical Center |
| Status | Under construction |
| Expected Completion Date | 3 October 2025 |
| Energy Efficiency | Grade A |
| Status | Reference | Type | Floor | Floors | Parking spaces | Bedrooms | Bathrooms | Covered m2 | Covered veranda m2 | Total Area | Communal area m2 | VAT | Monthly Rental Guarantee |
|---|---|---|---|---|---|---|---|---|---|---|---|---|---|
| 101 | Apartment | 1 | 1 | 1 | Studio | 1 | 30 | 6 | - | 7 | - | - | |
| 102 | Apartment | 1 | 1 | 1 | Studio | 1 | 30 | 6 | - | 17 | - | - | |
| 103 | Apartment | 1 | 1 | 1 | Studio | 1 | 30 | 7 | - | 17 | - | - | |
| 104 | Apartment | 1 | 1 | 1 | Studio | 1 | 30 | 8 | - | 17 | - | - | |
| 105 | Apartment | 1 | 1 | 1 | Studio | 1 | 29 | 7 | - | 16 | - | - | |
| 106 | Apartment | 1 | 1 | 1 | Studio | 1 | 30 | 8 | - | 17 | - | - | |
| 107 | Apartment | 1 | 1 | 1 | Studio | 1 | 29 | 8 | - | 16 | - | - | |
| 201 | Apartment | 2 | 1 | 1 | Studio | 1 | 30 | 5 | 35 | 17 | - | - | |
| 202 | Apartment | 2 | 1 | 1 | Studio | 1 | 30 | 4 | - | 17 | - | 1100 | |
| 203 | Apartment | 2 | 1 | 1 | Studio | 1 | 30 | 5 | 35 | 17 | - | - | |
| 204 | Apartment | 2 | 1 | 1 | Studio | 1 | 30 | 5 | - | 17 | - | - | |
| 205 | Apartment | 2 | 1 | 1 | Studio | 1 | 30 | 5 | - | 17 | - | - | |
| 206 | Apartment | 2 | 1 | 1 | Studio | 1 | 29 | 8 | - | 16 | - | - | |
| 207 | Apartment | 2 | 1 | 1 | Studio | 1 | 30 | 8 | - | 17 | - | - | |
| 208 | Apartment | 2 | 1 | 1 | Studio | 1 | 30 | 8 | - | 17 | - | - | |
| 209 | Apartment | 2 | 1 | 1 | Studio | 1 | 29 | 7 | - | 16 | - | - | |
| 301 | Apartment | 3 | 1 | 1 | Studio | 1 | 30 | 4 | - | 17 | - | - | |
| 302 | Apartment | 3 | 1 | 1 | Studio | 1 | 30 | 4 | - | 17 | - | - | |
| 303 | Apartment | 3 | 1 | 1 | Studio | 1 | 30 | 5 | 35 | 17 | - | - | |
| 304 | Apartment | 3 | 1 | 1 | Studio | 1 | 30 | 5 | 35 | 17 | - | - | |
| 305 | Apartment | 3 | 1 | 1 | Studio | 1 | 30 | 5 | 35 | 17 | - | - | |
| 306 | Apartment | 3 | 1 | 1 | Studio | 1 | 29 | 8 | - | 16 | - | 1100 | |
| 307 | Apartment | 3 | 1 | 1 | Studio | 1 | 30 | 8 | - | 17 | - | 1100 | |
| 308 | Apartment | 3 | 1 | 1 | Studio | 1 | 30 | 8 | - | 17 | - | - | |
| 309 | Apartment | 3 | 1 | 1 | Studio | 1 | 29 | 7 | - | 16 | - | 1100 |
Are you an agent? Sign in
For inquiries, please leave us your details.
Thank you for your message!