Situated in the highly coveted area of Agios Athanasios, ALDO Residences is an exclusive boutique development comprising just six contemporary 2-bedroom apartments. Designed for those who value privacy, comfort, and modern living, this limited collection of residences offers a perfect blend of style and functionality within one of Limassol’s most desirable neighborhoods.
Set in a serene yet strategically positioned location, ALDO Residences provides effortless access to the highway and is only a short drive from Limassol’s bustling city center. Daily conveniences, including supermarkets, schools, parks, and essential services.
With its prime address, modern design, and consistently rising demand in Agios Athanasios, ALDO Residences represents a compelling opportunity for both homeowners and investors seeking long-term value, strong rental potential, and elevated everyday living.
| Property Type | Residential |
| Location | Agios Athanasios |
| Status | Off plan |
| Expected Completion Date | |
| Energy Efficiency | Grade A+ |
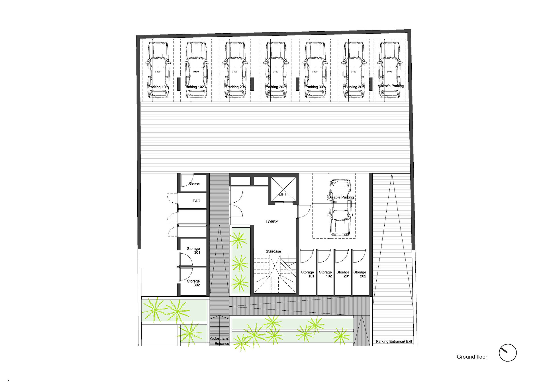
| Status | Reference | Type | Floor | Floors | Parking spaces | Bedrooms | Bathrooms | Covered m2 | Covered veranda m2 | Roof garden m2 | Total Area | VAT |
|---|---|---|---|---|---|---|---|---|---|---|---|---|
| 101 | Apartment | 1 | 1 | 1 | 2 | 2 | 75 | 22 | - | 97 | - | |
| 102 | Apartment | 1 | 1 | 1 | 2 | 2 | 75 | 22 | - | 97 | - | |
| 201 | Apartment | 2 | 1 | 1 | 2 | 2 | 75 | 22 | - | 97 | - | |
| 202 | Apartment | 2 | 1 | 1 | 2 | 2 | 75 | 22 | - | 97 | - | |
| 301 | Apartment | 3 | 1 | 1 | 2 | 2 | 80 | 22 | 37 | 139 | - | |
| 302 | Apartment | 3 | 1 | 1 | 2 | 2 | 80 | 22 | 37 | 139 | - |
Are you an agent? Sign in
For inquiries, please leave us your details.
Thank you for your message!