This website uses cookies to enhance your user experience.
By using our website, you consent to all cookies in accordance with our Cookie Policy, Privacy Policy, and Terms & Conditions.
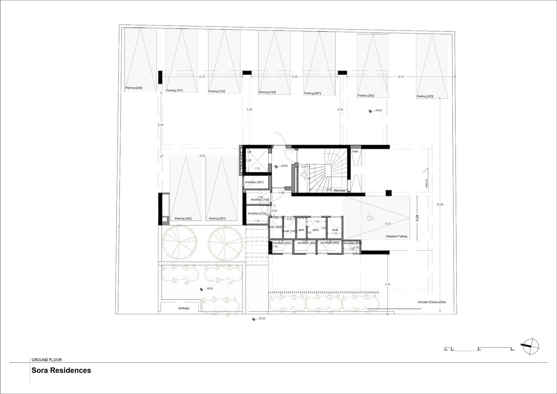
Located in Limassol's Columbia area, comprises eight apartments spread across a three-story building.
The apartments are available in one and two-bedroom layouts, catering to various lifestyle needs. Positioned near modern amenities such as shopping centers and restaurants, Sora Residences offers convenience to its residents.
Each apartment is designed with a blend of contemporary architecture and practicality, providing comfortable living spaces. Whether enjoying the views from the balconies or accessing nearby facilities, residents can expect a balanced lifestyle at Sora Residences.
| Property Type | Residential |
| Location | Germasogeia |
| Status | Under construction |
| Expected Completion Date | 30 September 2026 |
| Energy Efficiency | Grade A |
| Status | Reference | Type | Floor | Parking spaces | Bedrooms | Bathrooms | Covered m2 | Covered veranda m2 | Roof garden m2 | Storage m2 | VAT | Estimated Monthly Rental Income | Monthly Rental Guarantee |
|---|---|---|---|---|---|---|---|---|---|---|---|---|---|
| 101 | Apartment | 1 | 1 | 2 | 2 | 75 | 19 | - | 3 | - | 2800 | 1700 | |
| 101 + 103 | Apartment | 1 | 2 | 3 | 3 | 119 | 36 | - | 5 | - | - | - | |
| 102 | Apartment | 1 | 1 | 2 | 1 | 65 | 21 | - | 2 | - | - | - | |
| 103 | Apartment | 1 | 1 | 1 | 1 | 44 | 17 | - | 2 | - | - | - | |
| 201 | Apartment | 2 | 1 | 2 | 2 | 75 | 19 | - | 2 | - | - | - | |
| 202 | Apartment | 2 | 1 | 2 | 1 | 65 | 21 | - | 2 | - | - | - | |
| 203 | Apartment | 2 | 1 | 1 | 1 | 44 | 17 | - | 2 | - | - | - | |
| 301 | Apartment | Penthouse | 1 | 2 | 2 | 75 | 19 | 65 | 2 | - | 3000 | - | |
| 302 | Apartment | Penthouse | 1 | 2 | 1 | 65 | 21 | 60 | 2 | - | - | - | |
| 303 | Apartment | Penthouse | 1 | 1 | 1 | 50 | 11 | 29 | 2 | - | 1900 | 1400 |
Are you an agent? Sign in
For inquiries, please leave us your details.
Thank you for your message!